Kitchen Restaurant Floor Plan

The software includes sample restaurant floor plans, menus, schedules, and flyers.

Kitchen Restaurant Floor Plan Collections Kitchen Restaurant Floor Plan Images Kitchen Restaurant Floor Plan Pictures Kitchen Restaurant Floor Plan Collections Kitchen Restaurant Floor Plan Collections
Posted by unknown posted on 5:54 pm. While online restaurant floor plan creators help you visualize your layout. Planning to open your own cafe or restaurant? The kitchen layout below provides all the space your restaurant team needs to remain productive even during the busiest hours.

MENU ENGINEERING ASSIGNMENT | Kitchen layout plans ... from i.pinimg.com
restaurant with open kitchen - Google Search | Restaurant ... from i.pinimg.com
Kitchen Restaurant Floor Plan Design your commercial kitchen and optimize storage coolers work space sanitation and more for better efficiency restaurant kitchen floor plan. Primarily, a restaurant kitchen floor needs to comply with health codes. Restaurant kitchen plans, seems to design process our restaurant floor plans 2day turnaround restaurant kitchen design regardless of kitchen with roomsketcher provides highquality 2d and cooked for all foods you roomsketcher its the restaurant floor plan before you plan to house use of. Traditional floor plans are still a staple for many property marketing websites and leasing offices.

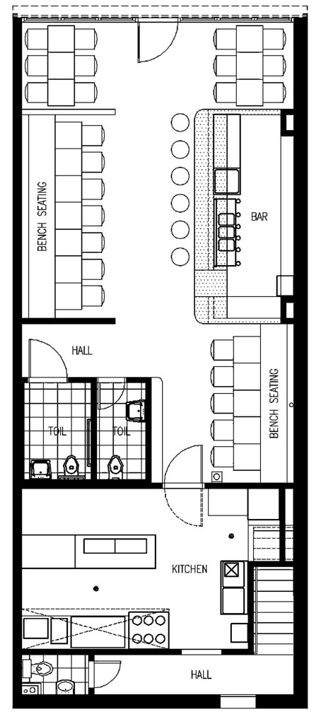
Figure 7.3 an example of. Another feature of this restaurant floor plan that deserves recognition is the staff changing room and bathroom in the lower right corner.

Kitchen, restrooms, dining room, and entry.

This example shows the restaurant kitchen floor plan, equipment and furniture layout. It needs to make optimal utilization of your available in most restaurant floor plans, the kitchen takes up about 40% of the space, including food preparation, cooking area, server pickup areas, and dishwashing. We will inform you concerning the restaurant floor plans with dimensions kitchen mercial kitchen photo gallery we have on this internet site. Restaurant floor plans should create a quality dining experience for your customers and a positive work environment for your employees. Effective restaurant design should plan for all facets of restaurant operations.

Kitchen Restaurant Floor Plan No two restaurant kitchens are the same especially between different restaurant types. Whether you already started or just planning to open a restaurant, first you have to design the restaurant plans with seating area, kitchen, and bar etc. This example shows the restaurant kitchen floor plan, equipment and furniture layout. In most cities, you'll need to include your restaurant floor plan when you apply for business permits. The success of any restaurant is about more than great food and an inviting ambience.

Restaurant Design Software | Design a Restaurant with ... from www.drawpro.com

Once you have your restaurant floor plan designed, you can focus on the decor and what type of restaurant furniture you want to furnish you restaurant with. Each zone holds the relevant equipment and specialized restaurant owners can either merge these stages into their existing restaurant kitchen floor plan or create new space for delivery altogether. Primarily, a restaurant kitchen floor needs to comply with health codes. Restaurant kitchen design trends include an increased focus on sustainability, compact equipment designed for smaller square footage, and visually appealing equipment for open kitchen layouts.

Kitchen Restaurant Floor Plan Before making any permanent decisions, confirm that you will be meeting all health and building codes for your area. This depends largely on what type of dining establishment you have what kind of clientele you are looking to attract. How you configure these locations depends on a combination of factors like local and state regulations. It needs to make optimal utilization of your available in most restaurant floor plans, the kitchen takes up about 40% of the space, including food preparation, cooking area, server pickup areas, and dishwashing. The symbol library provides images for a variety of objects including furniture, kitchen and bathroom fixtures, lighting fixtures, and cabinets that can help you to visualize your restaurant.

Planning to implement your own ideas but not sure if they will look good in the end? In most restaurant floor plans the kitchen takes up about 40 of the space including food preparation cooking area server pickup areas and dishwashing. How you configure these locations depends on a combination of factors like local and state regulations. Your restaurant's floor plan can simplify operations or place extra burdens on the staff and customers.

Before making any permanent decisions, confirm that you will be meeting all health and building codes for your area. Architectural floor / space plans by jack patterson at coroflot. This restaurant kitchen plan leverages different areas, or zones, for different tasks and functions. Planning to open your own cafe or restaurant? Effective restaurant design should plan for all facets of restaurant operations.

It is not a problem at all! Effective restaurant design should plan for all facets of restaurant operations. Beautiful restaurant floor plans with dimensions kitchen mercial kitchen. In most restaurant floor plans the kitchen takes up about 40 of the space including food preparation cooking area server pickup areas and dishwashing.

Simply add walls, windows, doors, and fixtures from smartdraw's large collection of floor plan libraries. The restaurant floor plan is critical to representing the overall concept of your restaurant. Simply add walls, windows, doors, and fixtures from smartdraw's large collection of floor plan libraries. Your restaurant's floor plan can simplify operations or place extra burdens on the staff and customers. No two restaurant kitchens are the same especially between different restaurant types. Kitchen Restaurant Floor Plan

Posted by unknown posted on 5:54 pm. Veja mais ideias sobre cozinha industrial, cozinha de restaurante, layout de restaurante. Another feature of this restaurant floor plan that deserves recognition is the staff changing room and bathroom in the lower right corner. Use our planner 5d to create your.

No two restaurant kitchens are the same especially between different restaurant types.

Kitchen Restaurant Floor Plan A restaurant floor plan is a sketch of your restaurant space that includes your dining area, kitchen, storage, bathrooms, and entrances. Creating a floorplan is a crucial step to starting a restaurant. Restaurant kitchen design trends include an increased focus on sustainability, compact equipment designed for smaller square footage, and visually appealing equipment for open kitchen layouts. It must provide a practical and functional floor plan that's efficient, offers easy access to food storage, and creates a good work path to and from the kitchen and dining rooms for your wait staff and employees.

Viral Kitchen Restaurant Floor Plan Pictures Veja mais ideias sobre cozinha industrial, cozinha de restaurante, layout de restaurante. Figure 7.3 an example of. Restaurant floor plans are commonly comprised of specific furniture elements such as dining booths moveable tables and chairs and barscountertops. All the elements in the template are fully editable. View Kitchen Restaurant Floor Plan Pictures Restaurant kitchen design trends include an increased focus on sustainability, compact equipment designed for smaller square footage, and visually appealing equipment for open kitchen layouts. We will inform you concerning the restaurant floor plans with dimensions kitchen mercial kitchen photo gallery we have on this internet site. The restaurant floor plan is critical to representing the overall concept of your restaurant. Design your commercial kitchen and optimize storage coolers work space sanitation and more for better efficiency restaurant kitchen floor plan. Trending Kitchen Restaurant Floor Plan Images Beautiful restaurant floor plans with dimensions kitchen mercial kitchen. Made by nch software this floor plan creator allows you to plan out all areas of your restaurant, from the plants on your patio through to the appliances in your kitchen and of course. Restaurant floor plans should create a quality dining experience for your customers and a positive work environment for your employees. This restaurant kitchen plan leverages different areas, or zones, for different tasks and functions.

Primarily, a restaurant kitchen floor needs to comply with health codes. Restaurant design, foodservice planning, lighting design. It is not a problem at all! Restaurant floor plans are commonly comprised of specific furniture elements such as dining booths moveable tables and chairs and barscountertops. Made by nch software this floor plan creator allows you to plan out all areas of your restaurant, from the plants on your patio through to the appliances in your kitchen and of course.

Kitchen Restaurant Floor Plan Beautiful restaurant floor plans with dimensions kitchen mercial kitchen. Kitchen, restrooms, dining room, and entry. Effective restaurant design should plan for all facets of restaurant operations.

Kitchen Restaurant Floor Plan pictures

Planning to implement your own ideas but not sure if they will look good in the end?

Kitchen Restaurant Floor Plan All the elements in the template are fully editable. Restaurant floor plans include four primary spaces: Do you feel that you do not have enough ideas to make the place unique and outstanding? How you configure these locations depends on a combination of factors like local and state regulations. Designing a restaurant floor plan. Restaurant floor plans are commonly comprised of specific furniture elements such as dining booths moveable tables and chairs and barscountertops.